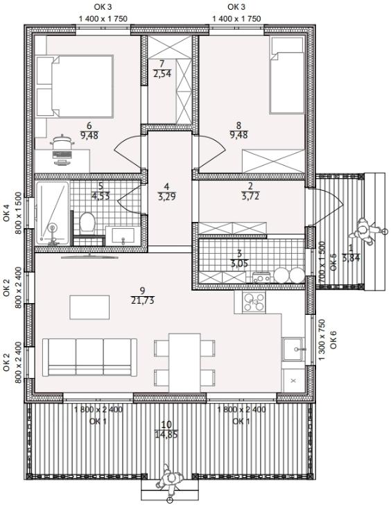
Загородный коттедж SIR - 4
  • Размер: 83,35 м2

  • Дом 69,95 м2 (Жилая 85 м2)

  • Терраса 14 м2

  • Этажность 1

  • Помещений: 2 спальни, кухня-гостиная, С/У, бойлерная (2 туалета)

  • Срок монтажа 45 дней

  • Предварительный выезд и расчет на вашем участке: бесплатно

Базовые характеристики
Craftum Сайт создан на Craftum