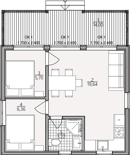
Проект Увельды-1
  • Размер: 56 м2

  • Дом 42 м2 (Жилая 35 м2)

  • Терраса 14 м2

  • Этажность 1

  • Помещений: 2 спальни, кухня-гостиная, С/У

  • Срок монтажа 31 день

  • Предварительный выезд и расчет на вашем участке: бесплатно

Базовые характеристики
Craftum Сайт создан на Craftum